5h + keittiö + sauna + pesuhuone + erillinen WC + 175 000 €
Фильтр
Искать во всех странах
Место нахождения
Искать во всех странах
  • Финляндия
  • Эстония
Центральная Финляндия
Искать по выбранному региону
Искать по выбранному региону
  • Йямся
  • Лаука
  • Ювяскюля
  • Honkola
  • Lievestuore

5h + keittiö + sauna + pesuhuone + erillinen WC +

№18494
Создано: 12 декабря 2024
5h + keittiö + sauna + pesuhuone + erillinen WC +  Ювяскюля - изображение 1
5h + keittiö + sauna + pesuhuone + erillinen WC +  Ювяскюля - изображение 2
5h + keittiö + sauna + pesuhuone + erillinen WC +  Ювяскюля - изображение 3
5h + keittiö + sauna + pesuhuone + erillinen WC +  Ювяскюля - изображение 4
5h + keittiö + sauna + pesuhuone + erillinen WC +  Ювяскюля - изображение 5
Адрес: Harja 5, 40340 Jyväskylä, Ювяскюля, Финляндия, Показать На карте на карте
Short Desc: 5h + keittiö + sauna + pesuhuone + erillinen WC +
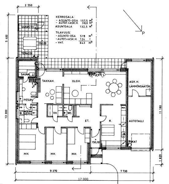
Количество комнат: 5
Общая площадь: 194м2
Жилая площадь: 132м2
Этаж: 1
Этажность дома: 1
Тип строения: Omakotitalo
Состояние: Хорошее
Sauna: Да
Debt-free price: 175000
Rakennuksen Vuosi: 1976
Täystiilinen omakotitalo Alkuperäiseltä omistajalta, kaukolämmöllä lämpiävä 1976 käyttöön otettu 1-tasoinen täystiilinen C-energialuokan omakotitalo. Talossa iso erillinen keittiö, valoisa ja avara olohuone, kolme makuuhuonetta, erillinen wc, vaatehuone, takkahuone ja pesuhuone, sauna sekä kodinhoitohuone. Lisäksi autotalli ja askarteluhuone. Lisäksi ulkovarasto. Omalla suojaisella piha-alueella on mukava viettää aikaa. Talo sijaitsee rauhallisella ja lapsiystävällisellä Kaakkolammen alueella päättyvän kadun varrella. Vieressä leikkipuisto. Lähellä uimaranta, jossa talvisin avantouintipaikka. Hyvät ulkoilualueet lähellä.
№18494
Создано: 12 декабря 2024
Markku Korhonen
Был онлайн 11 июля 2025 18:56
Зарегистрируйтесь или авторизуйтесь чтобы оставить комментарий.
Markku Korhonen
Был онлайн 11 июля 2025 18:56
Наверх