5h + keittiö + sauna + pesuhuone + erillinen WC + 175 000 €
Suodatin
Hae kaikista maista
Sijainti
Hae kaikista maista
  • Finland
  • Estonia
Keski-Suomi
Hae alueen mukaan
Hae alueen mukaan
  • Jaemsae
  • Laukaa
  • Jyväskylä
  • Honkola
  • Lievestuore

5h + keittiö + sauna + pesuhuone + erillinen WC +

№18494
Luotu: 12 joulukuuta 2024
5h + keittiö + sauna + pesuhuone + erillinen WC +  Jyväskylä - valokuva 1
5h + keittiö + sauna + pesuhuone + erillinen WC +  Jyväskylä - valokuva 2
5h + keittiö + sauna + pesuhuone + erillinen WC +  Jyväskylä - valokuva 3
5h + keittiö + sauna + pesuhuone + erillinen WC +  Jyväskylä - valokuva 4
5h + keittiö + sauna + pesuhuone + erillinen WC +  Jyväskylä - valokuva 5
Osoite: Harja 5, 40340 Jyväskylä, Jyväskylä, Finland, Näytä Kartalla kartalla
Lyhyt kuvaus: 5h + keittiö + sauna + pesuhuone + erillinen WC +
Huoneluku: 5
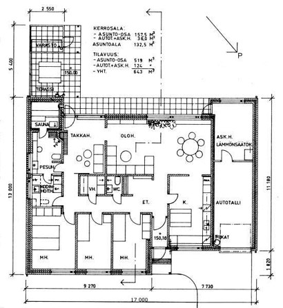
Kokonaispinta-ala: 194m2
Asuinpinta-ala: 132m2
Kerros: 1
Kerrosluku: 1
Rakennustyyppi: Omakotitalo
Kunto: Hyvä
Sauna: kyllä
Velaton hinta: 175000
Rakennuksen Vuosi: 1976
Täystiilinen omakotitalo Alkuperäiseltä omistajalta, kaukolämmöllä lämpiävä 1976 käyttöön otettu 1-tasoinen täystiilinen C-energialuokan omakotitalo. Talossa iso erillinen keittiö, valoisa ja avara olohuone, kolme makuuhuonetta, erillinen wc, vaatehuone, takkahuone ja pesuhuone, sauna sekä kodinhoitohuone. Lisäksi autotalli ja askarteluhuone. Lisäksi ulkovarasto. Omalla suojaisella piha-alueella on mukava viettää aikaa. Talo sijaitsee rauhallisella ja lapsiystävällisellä Kaakkolammen alueella päättyvän kadun varrella. Vieressä leikkipuisto. Lähellä uimaranta, jossa talvisin avantouintipaikka. Hyvät ulkoilualueet lähellä.
№18494
Luotu: 12 joulukuuta 2024
Markku Korhonen
Oli verkossa 11 heinäkuuta 2025 18:56
Kirjaudu sisään tai Rekisteröidy jättääksesi kommentin.
175 000 €
Markku Korhonen
Oli verkossa 11 heinäkuuta 2025 18:56
Takaisin ylös