1h + avok

№22990
Luotu: 12 joulukuuta 2024
1h + avok  Turtkul - valokuva 1
1h + avok  Turtkul - valokuva 2
1h + avok  Turtkul - valokuva 3
1h + avok  Turtkul - valokuva 4
1h + avok  Turtkul - valokuva 5
1h + avok  Turtkul - valokuva 6
1h + avok  Turtkul - valokuva 7
1h + avok  Turtkul - valokuva 8
Osoite: Vähäheikkiläntie 56, 20810 TURKU, Turtkul, uzbekistan, Näytä Kartalla kartalla
Lyhyt kuvaus: 1h + avok
Huoneluku: 1
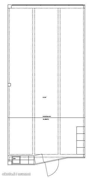
Asuinpinta-ala: 63m2
Kerros: 4
Kerrosluku: 4
Kunto: Hyvä
Velaton hinta: 65000
Rakennuksen Vuosi: 1969
Keittiö: Avokeittiö
Toimistohuoneisto Toimisto hyvällä sijainnilla Vähäheikkilässä. Toimisto sijaitsee rakennuksen ylimmässä, 4.kerroksessa. Pihalla on runsaasti vuokrattavia parkkipaikkoja. Yhtiövastike on 315€/kk ja se pitää sisällään rahoitusvastiketta. Hoitovastikkeen suuruus on 3,1€ / m2. Toimisto on vapaa
№22990
Luotu: 12 joulukuuta 2024
Teemu Levo
Oli verkossa 11 heinäkuuta 18:56
Kirjaudu sisään tai Rekisteröidy jättääksesi kommentin.
65 000 €
Teemu Levo
Oli verkossa 11 heinäkuuta 18:56
Takaisin ylös