Suodatin
Hae kaikista maista
Sijainti
Hae kaikista maista
  • Finland
  • Estonia
Päijät-Häme
Hae alueen mukaan
Hae alueen mukaan
  • Lahti
  • Heinola
  • Kesälahti
  • Loimaan Kunta
  • Velkua
  • Rymättylä
  • Tarvasjoki
  • Himanka
  • Lohtaja
  • Leivonmäki
  • Utsjoki
  • Särkisalo
  • Kuivaniemi
  • Kestilä
  • Enonkoski
  • Savonranta
  • Sammatti
  • Kustavi
  • Hauho
  • Luopioinen
  • Juupajoki
  • Hollola
  • Ylämaa
  • Perho
  • Ullava
  • Konnevesi
  • Multia
  • Mellilä
  • Sahalahti
  • Kihniö
  • Siikalatva
  • Piippola
  • Siikainen
  • Vampula
  • Sulkava
  • Karinainen
  • Kärkölä
  • Nastola

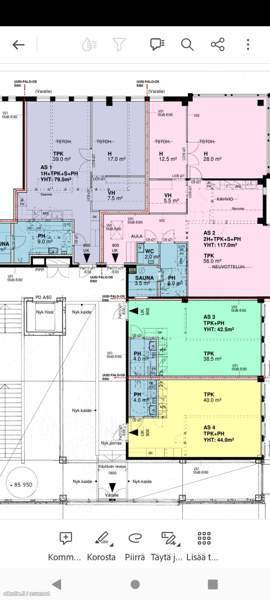
12h + s

№20158
Luotu: 12 joulukuuta 2024
12h + s  Heinola - valokuva 1
Osoite: Torikatu 5, 18100 Heinola, Heinola, Finland, Näytä Kartalla kartalla
Lyhyt kuvaus: 12h + s
Huoneluku: 12
Kokonaispinta-ala: 288m2
Asuinpinta-ala: 288m2
Kerros: 2
Kerrosluku: 2
Rakennustyyppi: Kerrostalo
Kunto: Hyvä
Sauna: kyllä
Velaton hinta: 135000
Hoitovastike: 1500
Rakennuksen Vuosi: 1985
Yrittäjälle tai sijoituksille Toimistotilat jolla saatu poikeamis lupa että siellä tulee 4 asuntoja, arkkitehti suunnitelma on valmis .ilv suunnitelma on valmis. sairauden vuoksi en pystyy jatkamaan,,voit laittaa oman tarjouksen viestillä tai sähköpostilla . Vaihtokauppa onnistuukin . Ottakaa rohkeasti yhteyttä.
№20158
Luotu: 12 joulukuuta 2024
Ad mrad
Oli verkossa 11 heinäkuuta 2025 18:56
Kirjaudu sisään tai Rekisteröidy jättääksesi kommentin.
135 000 €
Ad mrad
Oli verkossa 11 heinäkuuta 2025 18:56
Takaisin ylös