2h + s + p 85 000 €
Filter
Search in all countries
Location
Search in all countries
  • Finland
  • Estonia
Keski-Suomi
Search by the region
Search by the region
  • Jaemsae
  • Laukaa
  • Jyvaeskylae
  • Honkola
  • Lievestuore

2h + s + p

№21724
Created: 12 December 2024
2h + s + p  Jyvaeskylae - photo 1
2h + s + p  Jyvaeskylae - photo 2
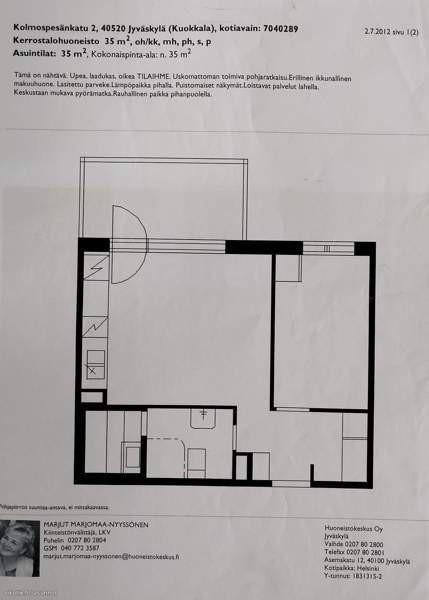
Address: Kolmospesänkatu 2, 40520 Jyväskylä, Jyvaeskylae, Finland, Show On Map on the map
Short Desc: 2h + s + p
Number of rooms: 2
Total area: 35m2
Living space: 35m2
Floor: 4
Floors in the house: 5
Balcony: yes
Building type: Kerrostalo
Condition: Hyvä
Steam bath: yes
Debt-free price: 85000
Maintenance fee: 118
Building Year: 1989
Siisti yksiö 4:s krs hissillisessä talossa Hyvin pidetty toimivapohjainen yksiö hissillisessä talossa
№21724
Created: 12 December 2024
Matti T
Was online 11 july 18:56
Log In or Sign In to leave comment.
85 000 €
Matti T
Was online 11 july 18:56
Back to Top